(A9) Moderný dom pre aktívnu rodinu - 4 izbový dom s garážou, Bitarová

Uložiť inzerát      Naše služby      Obhliadka

Detail ponuky

Číslo ponuky: ZA015923

Popis

Cena 337 295 €
Typ nehnuteľnosti Domy
Inzertná kategória Predaj
Stav nehnuteľnosti Novostavba
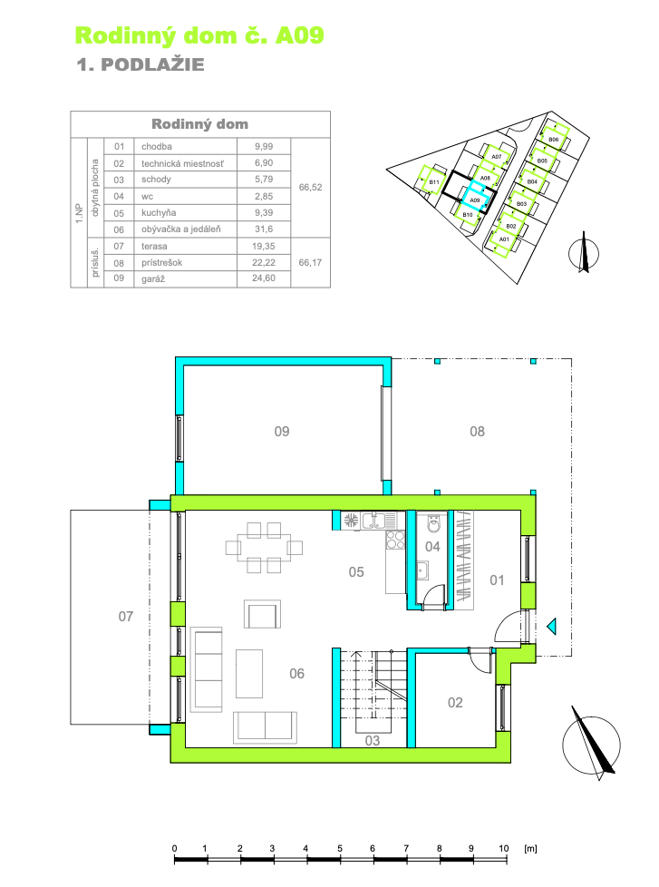
Plocha 125 m2
Výmera pozemkov 287 m2
Terasa 19.35 m2
Prístrešok 22.22 m2
Garáž 24.6 m2

Dom, ktorý dáva priestor životu. Dom A9 ponúka priestranné a pohodlné bývanie, ideálne pre každodenný rodinný život. Nová zástavba v Bitarovej spája pokojnú atmosféru vidieka s dostupnosťou do centra Žiliny.

Rodinný dom typu A9 má všetko, čo potrebuje aktívna rodina:

  • na prízemí sa nachádza veľkorysá obývacia izba prepojená s kuchyňou a jedálňou, odkiaľ sa vychádza na terasu so záhradou – ideálne miesto na oddych, rodinné večery či grilovanie s priateľmi,
  • vstupná chodba ponúka šatník a technickú miestnosť, nechýba samostatné WC,
  • na poschodí sú tri izbykúpeľňašatník a samostatné WC,
  • garáž a parkovacie miesto pod prístreškom zaručia komfortné parkovanie.

Kvalita a poctivá výstavba

Na projekte pracujeme s dôrazom na kvalitu a detaily.
Dom je aktuálne vysoko rozostavaný – dokončené vnútorné omietky, hrubé inštalácie, fasáda, práve realizujeme podlahové kúrenie a finálne úpravy chodníkov a terás.
Vonkajšie inžinierske siete sú na 90% hotové (elektro, verejné osvetlenie, vodovod, dažďová kanalizácia, žumpy, vodomerné šachty).
Cesta je pripravená s podkladnými štrkovými vrstvami a časťou obrubníkov.

Používame len overené materiály a technológie:

  • tehly POROTHERM Profi,
  • zateplenie BAUMIT,
  • plastové okná s trojsklom,
  • rovná strecha s 30 cm izoláciou,
  • moderný, minimalistický dizajn a premyslené detaily.

Domy ponúkame v štádiu holodomu, s možnosťou kompletného dokončenia podľa priania klienta – od podláh až po kuchyňu a sanitu.


Moderné a úsporné vykurovanie

Dom je vybavený tepelným čerpadlom vzduch-voda VIESSMANN VITOCAL 222-S, ktoré zabezpečuje podlahové vykurovanie s nízkym energetickým spádom.
Príprava teplej vody je riešená integrovaným zásobníkom 220 l s rúrkovým výmenníkom a poistným ventilom, čím je zabezpečená dostatočná zásoba teplej vody pre celú rodinu.


Komfortná rekuperácia vzduchu

Dom je pripravený aj na decentralizované nútené vetranie s jednotkami Viessmann Vitovent 200 D, ktoré sa umiestnia v obytných miestnostiach a umožnia reguláciu výkonu vetrania.

Odvod kondenzátu je riešený diskrétne na fasáde RD.
Vďaka tomu získavate zdravé vnútorné prostredie, čerstvý vzduch a nižšie náklady na energiu.


Technické vybavenie a nadštandardné prvky

  • Vykurovanie: Úsporné podlahové vykurovanie s moderným tepelným čerpadlom VIESSMANN, ktoré výrazne znižuje prevádzkové náklady.
  • Príprava teplej vody: Integrovaný zásobník 220 l s rúrkovým výmenníkom a poistným ventilom.
  • Rekuperácia: Nútené vetranie decentralizovanými jednotkami Viessmann Vitovent 200 D pre zdravé a komfortné vnútorné prostredie.
  • Parkovanie: Murovaná garáž s diaľkovým ovládaním a prístrešok pre druhé auto.
  • Inžinierske siete: Dom je pripojený na elektrinu, vodu, dažďovú kanalizáciu a disponuje 12 m³ žumpou. Verejné osvetlenie a vodomerné šachty sú súčasťou projektu.
  • Dom v štádiu holodomu: Možnosť dokončenia interiéru podľa vlastného vkusu (podlahy, dvere, kuchyňa, sanita).
  • Bezpečnosť a komfort: Moderné okná s trojsklom, kvalitné izolácie, fasáda BAUMIT, rovná strecha s 30 cm izoláciou.

Príďte sa pozrieť osobne

Dom A9 je pripravený pre nových majiteľov – v prostredí, kde sa žije pokojne, moderne a s pocitom domova.
Radi vás privítame na obhliadke a ukážeme vám, ako môže vyzerať váš nový domov v Bitarovej.

Cena: 357 519 € s DPH
Úžitková plocha: 125,53 m²
Terasa: 19,35 m²
Garáž: 24,60 m², Prístrešok: 22,22 m²
Pozemok: 287 m²
Stav: voľný, v štádiu holodomu

Bitarová – ticho, zeleň a mesto na dosah

Bitarová patrí k najvyhľadávanejším lokalitám v okolí Žiliny.
Ponúka pokoj, čistý vzduch a výhľady na prírodu, pričom do centra mesta sa dostanete autom za pár minút.
Obec má modernú infraštruktúru, detské ihriská, školu aj škôlku – ideálne prostredie pre rodiny, ktoré chcú rásť v zdravom a bezpečnom prostredí.


Nájdete na stránke realityMGM.sk pod ID ZA015923. Call centrum tel: 0910 86 11 86.



Bitarová  

Obec leží v západnej časti Žilinskej kotliny v úvalovitej doline Bitarovského potoka. Takmer odlesnený pahorkatinný povrch chotára s močaristými úvalinami a plochými chrbtami tvorí treťohorný flyš, na stráňach prekrytý hlinami. Malé lesné plochy sú na juhozápade a severovýchode od obce. Sídlisko lužickej a púchovskej kultúry z mladšej doby bronzovej, slovanský mohylník z doby veľkomoravskej. Obec sa prvýkrát písomne spomína v r. 1393. Patrila panstvu Lietava. V r. 1417 tu bol dedičný richtár Mycleus Gyurdowicz. V r. 1594 mala obec 10 domov, v r. 1720 mala 12 daňovníkov, a v r. 1828 mala 32 domov a 270 obyvateľov. Zaoberali sa prácou v lesoch, včelárstvom, ovčiarstvom. V 17. stor. boli v obci 4 panské rybníky. Po r. 1918 si obec zachovala poľnohosp. ráz. Časť obyvateľov pracuje v podnikoch v Žiline. V obci je vybudovaný verejný vodovod a rozvodná sieť plynu. V roku 2002 bola vystavaná kalvária spolu s kaplnkou Panny Márie Lurdskej


Bitarová  

Obec leží v západnej časti Žilinskej kotliny v úvalovitej doline Bitarovského potoka. Takmer odlesnený pahorkatinný povrch chotára s močaristými úvalinami a plochými chrbtami tvorí treťohorný flyš, na stráňach prekrytý hlinami. Malé lesné plochy sú na juhozápade a severovýchode od obce. Sídlisko lužickej a púchovskej kultúry z mladšej doby bronzovej, slovanský mohylník z doby veľkomoravskej. Obec sa prvýkrát písomne spomína v r. 1393. Patrila panstvu Lietava. V r. 1417 tu bol dedičný richtár Mycleus Gyurdowicz. V r. 1594 mala obec 10 domov, v r. 1720 mala 12 daňovníkov, a v r. 1828 mala 32 domov a 270 obyvateľov. Zaoberali sa prácou v lesoch, včelárstvom, ovčiarstvom. V 17. stor. boli v obci 4 panské rybníky. Po r. 1918 si obec zachovala poľnohosp. ráz. Časť obyvateľov pracuje v podnikoch v Žiline. V obci je vybudovaný verejný vodovod a rozvodná sieť plynu. V roku 2002 bola vystavaná kalvária spolu s kaplnkou Panny Márie Lurdskej


Okres Žilina

Má rozlohu 815,08 km², žije tu 155 989 obyvateľov a priemerná hustota zaľudnenia je 191 obyvateľov na km² (údaje k 31. 12. 2014).

Územie susedí na severe s okresmi Čadca a Kysucké Nové Mesto, na západe s okresmi Bytča, Považská Bystrica a Ilava, na juhu s okresom Prievidza a na východe s okresmi Martin a Dolný Kubín.

Prvé písomné zmienky o väčšine obcí okolia Žiliny sú z 13. a 14. storočia. Neskôr, počas valašskej a kopaničiarskej kolonizácie, boli osídlené obce pri horných tokoch riek a na úpätiach hôr Malej Fatry (Lysica, Dolná, Horná Tižina, Terchová).

Obyvateľstvo starého kultúrneho územia úrodnejšej časti okolia Žiliny sa zaoberalo poľnohospodárstvom, roľníci horských kopaničiarskych obcí boli viac zameraní na chov hospodárskych zvierat. Obrábali aj vysoko položené polia a využívali horské pasienky v odľahlom chotári, kde mali vybudované letné príbytky a maštale, tzv. bačoviská (cholvarky). Väčší význam mal salašnícky chov oviec s produkciou mliečnych výrobkov, mäsa, vlny a kožušiny. Úžitok prinášalo napokon aj výdatné hnojenie košarovanej pôdy. Salašnícky forma chovu oviec sa do súčasnosti zachovala vo viacerých obciach severozápadného Slovenska, v Terchovej a Belej pri Varíne nadobudla charakter družstevnej veľkovýroby.


Žilinský kraj

Demografia

K 21. máju 2011, bolo na území Žilinského kraja 144 948 domov, t.j. 13,5 % z celkového počtu domov v Slovenskej republike (z toho 120 788 obývaných, t.j. 83,3 %). Žilinský kraj bol v počte domov na druhom mieste za Nitrianskym krajom (podiel 16,2 %). Spomedzi okresov kraja najvyšší počet domov sa nachádzal v Žiline 20,3 % a najmenej v Turčianskych Tepliciach 3,3 %. Obývaných domov bolo v okrese Žilina 21,1 % z úhrnu za kraj a v Turčianskych Tepliciach 3,2 %.

Geologická charakteristika

Celé toto hornaté územie spadá z geomorfologického hľadiska do Západných Karpát. Horské masívy v tejto lokalite sa sformovali pomerne nedávno, v paleogéne. Zásluhou pohybov príkrovov sa vyzdvihovali pôvodné morské sedimenty, z ktorých postupne vznikli impozantné údolia. Rieka Váh územie nápadne rozdeľuje na dve časti:

  • severná zahŕňa pohoria: Tatry, Skorušinské vrchy, Oravské Beskydy, Oravská Magura, Oravská vrchovina, Chočské vrchy, Krivánska Fatra, Kysucké Beskydy, Kysucká vrchovina a Javorníky
  • južná zahŕňa pohoria: Nízke Tatry, Veľká Fatra, Lúčanská Fatra a Strážovské vrchy

Dejiny

Po páde Veľkomoravskej ríše v roku 907, ku ktorej územie patrilo, bolo od 12. storočia prakticky až do roku 1918 súčasťou uhorského kráľovstva. V 13. storočí na obranu proti mongolským nájazdom bola vybudovaná sieť hradov (Hričov, Považský, Košecký, Lietavský, Strečniansky). 16. storočie znamenalo pre miestnych obyvateľov chudobu a strach, hlavne pred tureckou okupáciou a živelnými pohromami. Ku koncu 19. storočia tu bola zavedená železnica a v údolí Váhu začal prekvitať priemysel.


Stručná história Slovenska

Prvý štátny útvar Slovanov na území dnešného Slovenska bola Samova ríša (7. storočie), neskôr Nitrianske kniežatstvo (začiatok 9. storočia), ktorého spojením s Moravským kniežatstvom vznikla v roku 833 Veľká Morava. Od polovice 10. do konca 11. storočia sa územie Slovenska postupne začlenilo do Uhorska, ktoré sa v roku 1526 stalo súčasťou Rakúskej monarchie (Habsburskej monarchie), od roku 1867 nazývanej Rakúsko-Uhorsko. Po rozpade Rakúsko-Uhorska v roku 1918 bolo Slovensko súčasťou Česko-Slovenska až do roku 1993 (okrem obdobia samostatnosti počas vojnovej Slovenskej republiky). 1. januára 1993 vznikla rozdelením tohto štátneho útvaru samostatná Slovenská republika.

Slovenská republika je parlamentnou demokraciou, štátnym jazykom je slovenčina. Od 1. mája 2004 je Slovensko členom Európskej únie, od 21. decembra 2007 je členom Schengenského priestoru. Od 1. januára 2009 je 16. členom Európskej menovej únie – eurozóny a oficiálnou menou sa stalo euro, ktoré vystriedalo slovenskú korunu.